高崎市江木町 新築住宅全10棟 5号棟

3,890万円

群馬県高崎市江木町

高崎線「高崎」駅徒歩22分

信越本線「北高崎」駅徒歩31分

上越線「高崎問屋町」駅徒歩21分

価格
3,890万円
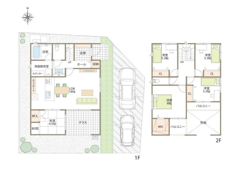
間取り
3LDK
土地面積
300.12㎡
所在地
群馬県高崎市江木町
交通

高崎線高崎」駅 徒歩22分

信越本線北高崎」駅 徒歩31分

上越線高崎問屋町」駅 徒歩21分

建物面積
108.89㎡
築年月
2024年7月(築1年)

現地見学会

日時 2025年8月10日 ~ 2026年8月31日  09:00 ~ 20:00
  • ※事前に必ずお問い合わせください
  • 【お問い合わせ・ご見学希望のお客様】

    ◇日時:現地見学会はご予約制ですが当日のご相談も可能です。
    ◇時間:9:00~20:00 ※応相談
    ◇ご相談場所:販売現地もしくはソルホーム事務所

    ・お仕事の合間やお仕事帰りでもご案内させていただきますのでお気軽にお問い合わせください。
    もちろんご自宅までの送迎サービスも承っております。
    詳しくは担当スタッフまでお問い合わせ下さい。

    ・ほかの物件もまとめて見学の場合
    ※ご予約時お電話にてお伝えください。

    【TEL:027-289-0914】

    ☆☆ソルホームの住宅相談☆☆

    【◎住宅ローンのご相談】

    ・繰り上げ返済は「いつ」、「どのくらい」するが効果的?
    ・どこの銀行で借りると良いの?
    ・適切な借入額は?
    ・貯金0、頭金0でお家って買えるの?
    ・いくら借りられるだろう?
    ・ローンに不安のある方
    ・育休中だけど
    ・自営業の方
    ・車のローンがあるけど
    ・住み替えで、今の自宅のローンがまだ残っているけど借りられる?
    なども含め、弊社の専門のスタッフがわかりやすい言葉で、丁寧に解消・サポートいたします。

    【◎FPによるライフプランのシミュレーション】
      
    ・購入後も無理の無い物件価格
    ・今後の長い人生のキャッシュフローをグラフで見える化
    ・ライフプランに合った資金計画
    ・効果的な生命保険の見直し etc...
    当社提携FPが丁寧にヒアリングを行いわかりやすくご説明を行います。

物件の特徴

  • バストイレ別

  • TVモニタ付きインターホン

  • 浴室乾燥機

セールスポイント

《月々10万円台、大型分譲地、駐車場2台、4LDK、城東小学校、塚沢中学校》

☆物件おすすめPOINT☆
・大型分譲地内のお家なので周辺は綺麗な街並み♪
・前面道路は広々しているので車の出入り安心です!!
・太陽光・蓄電池搭載!!

☆周辺ロケーション☆
城東小学校  約0.9km/徒歩12分
塚沢中学校  約1.0km/徒歩13分
クルベ 江木店 約800m/車2分

担当者のコメント

大塚 篤樹

\当日ご案内可能です/知識豊富なお客様専属スタッフが全力でサポートさせて頂きます♪
住宅ローンが心配な方、金利の低い銀行が知りたい方、税制面でのアドバイスなどお任せください。

基本情報

販売戸数
5戸
総戸数
10戸
間取り / 詳細
3LDK
LDK 19.2帖 1室/洋室 5.2帖 1室/洋室 5.2帖 1室/洋室 8.0帖 1室/0.0帖/0.0帖/0.0帖/0.0帖/0.0帖/0.0帖
向き
建物面積(坪数)
108.89㎡(32.93坪)
土地面積(坪数)
300.12㎡(90.78坪)
建ぺい率 /
容積率
60%/200%
築年月
2024年7月(築1年)
駐車場 / 月額
有(3台) / 0円
土地権利
所有権
土地
(敷金 / 保証金)
0万円 / 0万円
建物構造
木造 / 2階建
傾斜地部分面積
-
路地状敷地
-
私道負担面積
0.00㎡
セットバック
無 0.00㎡
高圧線下面積
0.00㎡
施工会社
-
用途地域
第一種住居
地目 / 地勢
宅地 / 平坦
接道状況
一方(南 公道 6.0m 間口 0.0m)
国土法届出要否
不要
都市計画
市街化区域
総区画数 /
販売区画数
10区画/5区画
現況
空家
その他
法令上の制限
景観法
取引態様
仲介
引渡し
即時
取引条件の
有効期限
2026年05月05日

設備条件

設備条件
  • 閑静な住宅地 / バリアフリー / 現地見学会 / 公営水道 / 公共下水 / オール電化 / 24時間換気システム / 照明器具付き / 駐車3台可 / IHクッキングヒーター / コンロ2口以上 / 食器洗い乾燥機 / システムキッチン / コンロ3口 / バス・トイレ別 / 浴室乾燥機 / トイレ2ヶ所 / 浴室1坪以上 / エアコン / ウォークインシューズクロゼット / 収納豊富 / TVモニタ付インターホン / 複層ガラス / ディンプルキー
設備(その他)
    公営水道、公共下水、オール電化

その他

物件番号
91918620
管理コード
01-144
建築確認番号
第ERI-24011079号
情報更新日
2026年04月21日
次回更新予定日
2026年05月05日
取扱会社
  • 株式会社Sol Home
  • 群馬県前橋市南町4丁目43−5 
  • TEL:027-289-0914
  • 国土交通大臣 (1) 第10994号
  • (公社)全国宅地建物取引業保証協会
    (一社)群馬県宅地建物取引業協会
    (公社)首都圏不動産公正取引協議会
備考
【お問い合わせ・ご見学希望のお客様】

※今から見たい、当日予約のお客様はこちら迄ご連絡ください。
 ◆027-289-0914◆

◇日時:現地見学会はご予約制ですが当日のご相談も可能です。

◇時間:9:00~20:00 ※応相談

◇ご相談場所:販売現地もしくはソルホーム事務所

・お仕事の合間やお仕事帰りでもご案内させていただきますのでお気軽にお問い合わせください。
もちろんご自宅までの送迎サービスも承っております。
詳しくは担当スタッフまでお問い合わせ下さい。

・ほかの物件もまとめて見学の場合
※ご予約時お電話にてお伝えください。

【TEL:027-289-0914】

☆☆ソルホームの住宅相談☆☆

【◎住宅ローンのご相談】

・繰り上げ返済は「いつ」、「どのくらい」するが効果的?
・どこの銀行で借りるといいのか?
・適切な借入額は?
・貯金0、頭金0でお家って買えるの?
・いくら借りられるだろう?
・ローンに不安のある方
・育休中だけど
・自営業の方
・車のローンがあるけど
・住み替えで、今の自宅のローンがまだ残っているけど借りられる?
なども含め、弊社の専門のスタッフがわかりやすい言葉で、丁寧に解消・サポートいたします。

【◎FPによるライフプランのシミュレーション】
  
・購入後も無理の無い物件価格
・今後の長い人生のキャッシュフローをグラフで見える化
・ライフプランに合った資金計画
・効果的な生命保険の見直し etc...
当社提携FPが丁寧にヒアリングを行いわかりやすくご説明を行います。

高崎市江木町 新築住宅全10棟の他の物件

  1. 2号棟

    4LDK (98.53㎡)

    4,470万円(150万円/坪)

  2. 10号棟

    5LDK (117.58㎡)

    4,290万円(120.64万円/坪)

周辺施設

  • いず海保育園の画像

    保育園

    いず海保育園

    271m(4分)

  • セブンイレブン 高崎江木町店の画像

    コンビニエンスストア

    セブンイレブン 高崎江木町店

    443m(6分)

  • すみれ幼稚園の画像

    幼稚園

    すみれ幼稚園

    549m(7分)

  • 高崎江木郵便局の画像

    郵便局

    高崎江木郵便局

    663m(9分)

  • クルベ 江木店の画像

    スーパー

    クルベ 江木店

    771m(10分)

  • 高崎市立城東小学校の画像

    小学校

    高崎市立城東小学校

    896m(12分)

  • 群馬銀行 高崎東支店の画像

    銀行

    群馬銀行 高崎東支店

    993m(13分)

  • 高崎市立塚沢中学校の画像

    中学校

    高崎市立塚沢中学校

    1018m(13分)

  • 井上病院の画像

    総合病院

    井上病院

    1838m(23分)

  • 高崎オーパの画像

    ショッピングセンター

    高崎オーパ

    1853m(24分)

支払いシミュレーション

月々の支払額

※実際の金額と異なる場合があります。

購入希望物件価格
万円
頭金
万円
金利
%
返済額(ボーナス1回分)
万円
返済期間

※ボーナスは自動で年2回分で計算されます。

近隣の物件

  1. 高崎市石原町3期 新築住宅全1棟

    高崎市石原町

    4LDK (110.54㎡)

    2,680万円

  2. 高崎市町屋町第2 新築住宅全1棟

    高崎市町屋町

    4SLDK (113.85㎡)

    2,590万円

  3. 高崎市新町第8 新築住宅全9棟

    高崎市新町

    4SLDK (107.64㎡)

    2,390万円

  4. 高崎市上和田町1期 新築住宅全1棟

    高崎市上和田町

    3LDK (102.67㎡)

    2,980万円

よく見られている物件

  1. 高崎市江木町 新築住宅全10棟

    高崎市江木町

    3LDK (108.89㎡)

    3,890万円

  2. 高崎市江木町 新築住宅全10棟

    高崎市江木町

    5LDK (117.58㎡)

    4,290万円

  3. 高崎市上中居町 新築住宅全4棟

    高崎市上中居町

    3LDK+S(納戸) (105.57㎡)

    3,990万円

  4. 前橋市粕川町新屋第2 新築住宅全3棟

    前橋市粕川町新屋

    4LDK+S(納戸) (96.78㎡)

    1,780万円

高崎市江木町 新築住宅全10棟

高崎市江木町 新築住宅全10棟

3,890万円

-

3LDK(108.89㎡)

お気軽にお問い合わせください

LINEからお問い合わせ 無料お問い合わせ

株式会社Sol Home

027-289-0914

09:00~19:00

(休:年中無休)