高崎市石原町1期 新築住宅全1棟

2,880万円

群馬県高崎市石原町

上信電鉄「南高崎」駅徒歩18分

上信電鉄「佐野のわたし」駅徒歩24分

高崎線「高崎」駅徒歩32分

価格
2,880万円
間取り/建物面積
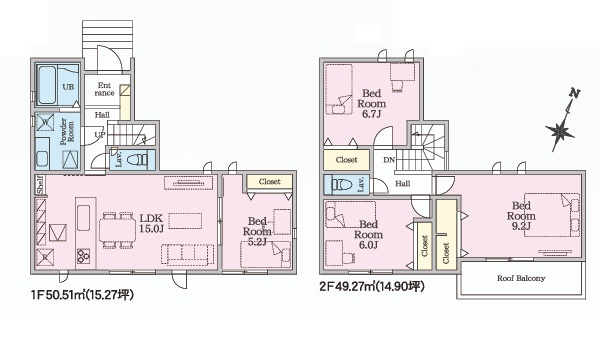
4LDK/99.78㎡
所在地
群馬県高崎市石原町
築年
2026年6月(予定)
駐車
交通

上信電鉄南高崎」駅 徒歩18分

上信電鉄佐野のわたし」駅 徒歩24分

高崎線高崎」駅 徒歩32分

高崎市石原町1期 新築住宅全1棟の基本情報

物件名
高崎市石原町1期 新築住宅全1棟
価格
2,880万円
建物面積
99.78㎡
土地面積
39.39坪(130.22㎡)
築年月
2026年6月(予定)
総戸数
1戸
所在地
群馬県高崎市石原町
交通

上信電鉄南高崎」駅 徒歩18分

上信電鉄佐野のわたし」駅 徒歩24分

高崎線高崎」駅 徒歩32分

高崎市石原町1期 新築住宅全1棟の詳細情報

設備条件
  • 建設住宅性能評価書付
  • 駐車2台可
  • 耐震構造
  • 宅配ボックス
設備(その他)
    -
駐車場/月額
有/-
土地権利
所有権
国土法届出
不要
用途地域
第一種低層住居専用
取引態様
仲介
引渡し
2026年7月下旬

高崎市石原町1期 新築住宅全1棟で募集中の物件

  1. 1号棟

    30.18坪 (99.78㎡)

    2,880万円(95.43万円/坪)

周辺施設

  • ローソン 高崎寺尾町店の画像

    コンビニエンスストア

    ローソン 高崎寺尾町店

    420m(6分)

  • 高崎市立寺尾中学校の画像

    中学校

    高崎市立寺尾中学校

    600m(8分)

  • 高崎石原南郵便局の画像

    郵便局

    高崎石原南郵便局

    620m(8分)

  • 高崎市立寺尾小学校の画像

    小学校

    高崎市立寺尾小学校

    750m(10分)

  • 高崎信用金庫 石原支店の画像

    信用金庫

    高崎信用金庫 石原支店

    777m(10分)

  • 幼保連携型 石原かがやきこども園の画像

    保育園

    幼保連携型 石原かがやきこども園

    801m(11分)

  • 高崎市役所 片岡市民サービスセンターの画像

    市役所・区役所

    高崎市役所 片岡市民サービスセンター

    933m(12分)

  • マルエドラッグ 高崎寺尾店の画像

    ドラッグストア

    マルエドラッグ 高崎寺尾店

    1395m(18分)

  • コープぐんま コープ寺尾店の画像

    スーパー

    コープぐんま コープ寺尾店

    1400m(18分)

  • 松岡医院の画像

    内科

    松岡医院

    1684m(22分)

  • 城南幼稚園の画像

    幼稚園

    城南幼稚園

    2026m(26分)

近隣の物件

  1. 高崎市金古町

    3LDK (91.63㎡)

    2,498万円

  2. 高崎市飯塚町

    4LDK (103.50㎡)

    3,390万円

  3. 高崎市新町

    4LDK (112.62㎡)

    2,790万円

  4. 高崎市石原町

    5LDK (103.50㎡)

    2,880万円

よく見られている物件

  1. 前橋市北代田町

    4LDK (117.96㎡)

    1,680万円

  2. 高崎市江木町

    3LDK (108.89㎡)

    3,890万円

  3. 高崎市上中居町

    3LDK+S(納戸) (105.57㎡)

    3,990万円

  4. 前橋市関根町2丁目

    3DK (63.76㎡)

    1,780万円

高崎市石原町1期 新築住宅全1棟

お気軽にお問い合わせください

LINEからお問い合わせ 無料お問い合わせ

株式会社Sol Home

027-289-0914

09:00~19:00

(休:年中無休)