東御市常田第2 新築住宅全8棟

2,280万円~2,780万円

長野県東御市常田

しなの鉄道「田中」駅徒歩22分

しなの鉄道「滋野」駅徒歩35分

しなの鉄道「大屋」駅徒歩62分

価格
2,280万円~2,780万円
間取り/建物面積
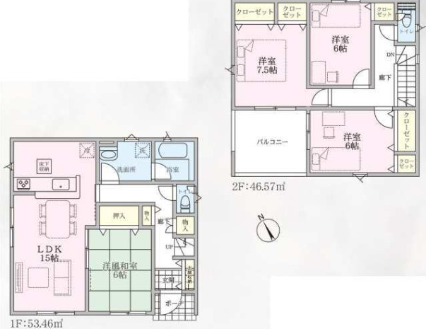
3LDK~5LDK/79.38㎡~103.68㎡
所在地
長野県東御市常田
築年
2025年12月(予定)
駐車
交通

しなの鉄道田中」駅 徒歩22分

しなの鉄道滋野」駅 徒歩35分

しなの鉄道大屋」駅 徒歩62分

東御市常田第2 新築住宅全8棟の基本情報

物件名
東御市常田第2 新築住宅全8棟
価格
2,280万円~2,780万円
建物面積
79.38㎡~103.68㎡
土地面積
60.6坪~93.8坪(200.36㎡~310.09㎡)
築年月
2025年12月(予定)
総戸数
8戸
所在地
長野県東御市常田
交通

しなの鉄道田中」駅 徒歩22分

しなの鉄道滋野」駅 徒歩35分

しなの鉄道大屋」駅 徒歩62分

東御市常田第2 新築住宅全8棟の詳細情報

設備条件
  • 閑静な住宅地
  • 建設住宅性能評価書付
  • 駐車2台可
  • 耐震構造
  • 防犯カメラ
設備(その他)
    公営水道、公共下水、プロパンガス
駐車場/月額
有/-
土地権利
所有権
国土法届出
不要
用途地域
第一種低層住居専用
取引態様
仲介
引渡し
2025年12月下旬

東御市常田第2 新築住宅全8棟で募集中の物件

  1. 1号棟

    29.64坪 (98.01㎡)

    2,280万円(76.92万円/坪)

  2. 4号棟

    30.38坪 (100.44㎡)

    2,480万円(81.63万円/坪)

  3. 5号棟

    31.36坪 (103.68㎡)

    2,480万円(79.08万円/坪)

  4. 7号棟

    31.36坪 (103.68㎡)

    2,580万円(82.27万円/坪)

  5. 8号棟

    30.38坪 (100.44㎡)

    2,580万円(84.92万円/坪)

  6. 2号棟

    30.25坪 (100.03㎡)

    2,680万円(88.6万円/坪)

  7. 6号棟

    25.97坪 (85.86㎡)

    2,680万円(103.2万円/坪)

  8. 3号棟

    24.01坪 (79.38㎡)

    2,780万円(115.79万円/坪)

周辺施設

  • セブンイレブン 東部加沢店の画像

    コンビニエンスストア

    セブンイレブン 東部加沢店

    564m(8分)

  • 東御市民病院の画像

    総合病院

    東御市民病院

    656m(9分)

  • 加沢簡易郵便局の画像

    郵便局

    加沢簡易郵便局

    668m(9分)

  • アメリカンドラッグ 東御常田店の画像

    ドラッグストア

    アメリカンドラッグ 東御常田店

    950m(12分)

  • 東御市立東部中学校の画像

    中学校

    東御市立東部中学校

    1040m(13分)

  • デリシア 東御店の画像

    スーパー

    デリシア 東御店

    1337m(17分)

  • 東御市立田中保育園の画像

    保育園

    東御市立田中保育園

    1726m(22分)

  • くるみ幼稚園の画像

    幼稚園

    くるみ幼稚園

    1805m(23分)

  • 東御市立田中小学校の画像

    小学校

    東御市立田中小学校

    2298m(29分)

東御市常田第2 新築住宅全8棟

お気軽にお問い合わせください

LINEからお問い合わせ 無料お問い合わせ

株式会社Sol Home

027-289-0914

09:00~19:00

(休:年中無休)