高崎市上並榎町第1期 新築住宅全1棟

3,180万円

群馬県高崎市上並榎町

信越本線「北高崎」駅徒歩16分

上越線「高崎問屋町」駅徒歩42分

高崎線「高崎」駅徒歩42分

価格
3,180万円
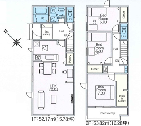
間取り/建物面積
3LDK/105.99㎡
所在地
群馬県高崎市上並榎町
築年
2026年3月(予定)
駐車
交通

信越本線北高崎」駅 徒歩16分

上越線高崎問屋町」駅 徒歩42分

高崎線高崎」駅 徒歩42分

高崎市上並榎町第1期 新築住宅全1棟の基本情報

物件名
高崎市上並榎町第1期 新築住宅全1棟
価格
3,180万円
建物面積
105.99㎡
土地面積
45.11坪(149.15㎡)
築年月
2026年3月(予定)
総戸数
1戸
所在地
群馬県高崎市上並榎町
交通

信越本線北高崎」駅 徒歩16分

上越線高崎問屋町」駅 徒歩42分

高崎線高崎」駅 徒歩42分

高崎市上並榎町第1期 新築住宅全1棟の詳細情報

設備条件
  • 建設住宅性能評価書付
  • 駐車3台可
  • 耐震構造
  • 宅配ボックス
設備(その他)
    -
駐車場/月額
有/-
土地権利
所有権
国土法届出
不要
用途地域
第一種中高層住居専用
取引態様
仲介
引渡し
2026年4月下旬

高崎市上並榎町第1期 新築住宅全1棟で募集中の物件

  1. 1号棟

    32.06坪 (105.99㎡)

    3,180万円(99.19万円/坪)

周辺施設

  • 高崎並榎郵便局の画像

    郵便局

    高崎並榎郵便局

    200m(3分)

  • セブンイレブン高崎大橋町店の画像

    コンビニエンスストア

    セブンイレブン高崎大橋町店

    451m(6分)

  • スギドラッグ 高崎並榎店の画像

    ドラッグストア

    スギドラッグ 高崎並榎店

    504m(7分)

  • 高崎市立西小学校の画像

    小学校

    高崎市立西小学校

    570m(8分)

  • 三山幼稚園の画像

    幼稚園

    三山幼稚園

    596m(8分)

  • 高崎市立並榎中学校の画像

    中学校

    高崎市立並榎中学校

    810m(11分)

  • フレッセイ 上並榎店の画像

    スーパー

    フレッセイ 上並榎店

    850m(11分)

  • 八十二銀行 高崎支店の画像

    銀行

    八十二銀行 高崎支店

    1281m(17分)

  • 第一病院の画像

    総合病院

    第一病院

    1746m(22分)

  • ウニクス 高崎の画像

    ショッピングセンター

    ウニクス 高崎

    2023m(26分)

  • 高崎市六郷市民サービスセンターの画像

    市役所・区役所

    高崎市六郷市民サービスセンター

    2056m(26分)

近隣の物件

  1. 高崎市日高町

    3SLDK (92.53㎡)

    3,098万円

  2. 高崎市藤塚町

    4LDK (104.33㎡)

    2,950万円

  3. 高崎市石原町

    4LDK (98.12㎡)

    2,790万円

  4. 高崎市根小屋町

    4LDK (115.09㎡)

    2,880万円

よく見られている物件

  1. 高崎市江木町

    3LDK (108.89㎡)

    3,890万円

  2. 前橋市北代田町

    4LDK (117.96㎡)

    1,680万円

  3. 前橋市河原浜町

    4LDK (95.58㎡)

    1,680万円

  4. 安中市郷原

    5LDK (156.50㎡)

    1,499万円

高崎市上並榎町第1期 新築住宅全1棟

お気軽にお問い合わせください

LINEからお問い合わせ 無料お問い合わせ

株式会社Sol Home

027-289-0914

09:00~19:00

(休:年中無休)